Landal Pettemer Duynen, Type Duyn Loft Comfort Kids - DL4CK

Petten, Noord-Holland

€ 532.000 v.o.n. excl. BTW

4-persoons kindvriendelijke vrijstaande recreatiewoning

  • Exclusief
  • Rendement
  • Speciaal ontworpen 4-persoons kindvriendelijke loft
  • Een stijlvolle woning zwevend boven een wadi met speelplaatsen
  • Gelegen op slechts 200 meter van het strand

Echt even ontspannen als gezin? Welkom bij de Duyn Loft Comfort Kids, waarbij je zorgeloos op vakantie kan met het hele gezin. Alle acht Duyn Loft Comfort Kids woning liggen bij elkaar, zwevend boven een wadi. De woning is speciaal voor kinderen ontworpen, met een oog op comfort, veiligheid en duurzaamheid. Groene innovatie gecombineerd met optimaal woongenot.

Landal Pettemer Duynen
Luxe, natuur en kustbeleving in perfect evenwicht. Landal Pettemer Duynen is een exclusief recreatiepark die perfect hoogwaardige architectuur, duurzaamheid en een ongedwongen kustsfeer combineert. De woningen zijn zorgvuldig ontworpen om harmonieus op te gaan in het duinlandschap en bieden een ongeëvenaarde mix van comfort en rust.

Het park is autoluw, waardoor je in alle stilte kunt genieten van de natuur en de ruimte.In het centraal gelegen hoofdgebouw vind je niet alleen een receptie en parkshop, maar ook een stijlvol horecaconcept verspreid over twee verdiepingen met meerdere terrassen. Een bijzondere toevoeging is het Discovery Centre, waar interactieve exposities van hightech bedrijven te bewonderen zijn.

Ontdek de woning
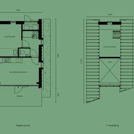
De 4-persoons Duyn Loft Comfort Kids is een unieke, eigentijdse lodge die comfort en natuur naadloos met elkaar verbindt. De Loft combineert een strak, modern design met de natuurlijke schoonheid van de kust. De hoge glazen gevel in de woonkamer met vide zorgt voor een naadloze verbinding met het omliggende duinlandschap, waardoor binnen en buiten in elkaar overlopen. De begane grond beschikt over een stijlvolle tweepersoonsslaapkamer met een ensuite badkamer, bestaande uit een inloopdouche en wastafel.

De vide van de woning is gemaakt als kinderslaapkamer, die speciaal is ingericht voor kinderen. Daarnaast is er in de woonkamer ook gedacht aan de kleinste gasten van het park. Zo is de hele woning gebouwd en gefocust op een ideaal verblijf met het hele gezin.

Het deels zwevende terras boven de wadi biedt een unieke plek om in alle rust van de natuur te genieten. In de wadi bevinden zich houten speeltoestellen, waarbij kinderen in zowel droog als nat weer kunnen ravotten. De mix van materialen in de gevelbekleding zorgt voor een moderne look, met als blikvanger de achterzijde, waar gebrand hout een warme, karaktervolle touch geeft.

Verhuur, rendement en eigen gebruik
Bij Pettemer Duynen is het verplicht om de woning in de verhuur aan te bieden. Dit wordt gerealiseerd door Landal, zij nemen de verhuur volledig op zich, zodat jij als eigenaar zorgeloos kan genieten zonder omkijken naar. Als eigenaar behoud je de mogelijkheid om jaarlijks tot 90 dagen zelf van je woning te genieten, waarvan 14 dagen in het hoogseizoen (juli, augustus). Download de brochure en bekijk alle kosten en opbrengsten.

Kenmerken

  • Prijs € 532.000 v.o.n. excl. BTW
  • Woonoppervlakte 77 m2
  • Grondsituatie Erfpacht
  • Rendement 4 tot 6%
  • Soort woning Vrijstaande recreatiewoning
  • Aantal personen 4
  • Verhuur Verhuur verplicht
  • Bouwvorm Nieuwbouw
  • Bouwjaar 2025
  • Soort bouw Houtskeletbouw
  • Bouwlagen 2
  • Dakbedekking Aluminium dakplaten
  • Vloerafwerking
    • PVC
  • Wandafwerking
    • geschilderd
  • Warm water Verwarmd door warmtepomp
  • Verwarming Warmtepomp
  • Aantal slaapkamers 2
  • Aantal badkamers 1
  • Aantal toiletten 1
  • Inventaris Inclusief inventaris
  • Staat van onderhoud buiten Uitstekend
  • Staat van onderhoud binnen Uitstekend
  • Staat van onderhoud inventaris Uitstekend
  • Tuin Tuin (met terras)
  • Parkeervoorziening Centrale parkeerplaats
  • Ligging
    • Bij strand/zee
  • Faciliteiten
    • Apart toilet
    • Badkamer op begane grond
    • Combimagnetron
    • Kindvriendelijk
    • Slaapkamer op begane grond
    • Tuin
    • Vaatwasser
    • Zonnepanelen
  • Extra
    • Voorzien van grondwater warmtepomp
  • Energielabel
    A

Parkinformatie

  • 150 luxe en duurzame villa’s, lodges en suites midden in de duinen van Petten
  • Op slechts 200 meter van het Noordzeestrand
  • Turn-key oplevering, compleet ingericht en gestyled, klaar voor de verhuur (via Landal)
  • Start bouw Q1 2026 definitief – Fase 1 ruim 70% verkocht!

Een exclusieve ervaring waar luxe, natuur en innovatie samenkomen, welkom bij Landal Pettemer Duynen. Dit autoluwe vakantiepark ligt op een unieke locatie, op nog geen 200 meter van het uitgestrekte strand van Petten. Hier ervaar je de perfecte balans tussen ontspanning en activiteit, midden in een van de mooiste kustlandschappen van Nederland.

Landal Pettemer Duynen ligt midden in een uitgestrekt en gevarieerd natuurgebied, waar de Pettemer Duinen, het Zwanenwater en de Hondsbossche Duinen naadloos in elkaar overlopen tot aan de Schoorlse Duinen. Dit biedt eindeloze mogelijkheden voor lange wandelingen, fietstochten en vogelspotten in een omgeving waar de natuur nog echt de ruimte krijgt. Vanaf de vele panoramapunten geniet je van adembenemende vergezichten over de duinen, het bos en de zee.

Niet alleen een toevluchtsoord voor natuurliefhebbers, maar ook een toonbeeld van duurzaamheid. Gelegen in een beschermd Natura 2000-gebied en bekroond met het Green Key-label, is Landal Pettemer Duynen dé bestemming voor wie luxe, comfort en duurzaam recreëren wil combineren.

Eindeloze Duinen en de Magie van de Vuurboet
Petten, een charmant kustdorp met een rijke maritieme historie, biedt de perfecte setting voor dit hoogwaardige project. Door het park heen gaat het Vuurboetpad, de iconische hoofdroute die het dorp met het strand verbindt. Het is niet alleen een snelle en toegankelijke verbinding tussen dorp en strand, maar heeft voor de Pettemers een grotere gedachte. De naam Vuurboetpad verwijst naar de oude vuurtoren die door de Pettemer vissers werd gebruikt om weer terug naar huis te keren. 

Aan de rand van strand en zee verrijst het indrukwekkende Palendorp, een kunstzinnige herinnering aan het verleden van Petten. De 160 houten palen vormen een mystiek silhouet van een kerk en huizen, een eerbetoon aan het dorp dat ooit door de zee werd verzwolgen. Hier, waar geschiedenis en natuur samenkomen, voel je de kracht van het water en de veerkracht van de gemeenschap. En op de iconische schommel, wiegend in de zeewind, ervaar je even hoe het is om deel uit te maken van dit bijzondere verhaal.

De ontwikkeling van Petten is in volle bloei! Het vernieuwde dorpsplein, met het opkomende Petten Plaza, biedt straks een gevarieerd aanbod van horeca, delicatessen en boetieks. Dit transformeert Petten tot meer dan een regionaal centrum, het wordt een badplaats met internationale allure.

Faciliteiten op het park
Bij aankomst in het hoofdgebouw, strategisch gelegen bij de ingang van het strand, word je direct ondergedompeld in sfeer en comfort. Hier vind je de receptie en een parkshop. Daarnaast is er in het hoofdgebouw ook een horecagelegenheid, verdeeld over twee verdiepingen met meerdere terrassen en uitzicht over het strand en de duinen!

Daarnaast komt er op het park een uniek Discovery Centre, een exclusieve beleving met interactieve exposities van toonaangevende hightech bedrijven. Ontdek de baanbrekende innovaties en leer hoe deze bijdragen aan medische vooruitgang. Vergroot je kennis over waterbeheer op de interactieve en educatieve speelplaats van het Hoogheemraadschap. Beklim de uitkijktoren en geniet van een panoramisch uitzicht over de duinen.

Verhuur, rendement en eigen gebruik
Investeren in een recreatiewoning bij Landal betekent kiezen voor betrouwbaarheid, kwaliteit en een solide rendement op lange termijn. Op het park zit een verhuurverplichting, waarbij eigen gebruik toegestaan is tot 90 dagen op jaarbasis, waarvan 2 weken in het hoogseizoen (juli, augustus). Met een sterke bezettingsgraad en een professionele verhuurpartner geniet je zorgeloos van je investering.

De verhuur van jouw recreatiewoning bij Landal Pettemer Duynen wordt volledig verzorgd door Landal. Zij nemen alles uit handen, zodat jij als eigenaar volledig geniet zonder zorgen. Landal beheert alles met betrekking tot de verhuur, administratie, huuropbrengsten en de kostenrekeningen namens de VvE, waarvan je als eigenaar automatisch lid wordt. Download de brochure voor meer informatie over de verhuuropbrengsten!

Woningen op dit park

  • Landal Pettemer Duynen

    Petten, Noord-Holland

    12-persoons vrijstaande luxe villa

    Type Duyn Villa Luxe - DV12L

    208m2 / m2

    € 1.093.200 v.o.n. excl. BTW

    • Exclusief
    • Rendement
    Bekijk woning
  • Landal Pettemer Duynen

    Petten, Noord-Holland

    8-persoons extra luxe vrijstaande wellness villa

    Type Duyn Villa Extra Luxe Wellness - DV8ELW

    126m2 / m2

    € 891.400 v.o.n. excl. BTW

    • Exclusief
    • Rendement
    Bekijk woning
  • Landal Pettemer Duynen

    Petten, Noord-Holland

    6-persoons extra luxe vrijstaande wellness villa

    Type Duyn Villa Extra Luxe Wellness - DV6ELW

    140m2 / m2

    € 847.200 v.o.n. excl. BTW

    • Exclusief
    • Rendement
    Bekijk woning